Property Details
Basic Information
- Property Type: Single Family
- MLS Number: 5068497
- Status: PEN
- Lot Description: Level, Neighborhood
- Acreage: 0.64
- Foreclosure: No
- Virtual Tour: Virtual Tour
Building
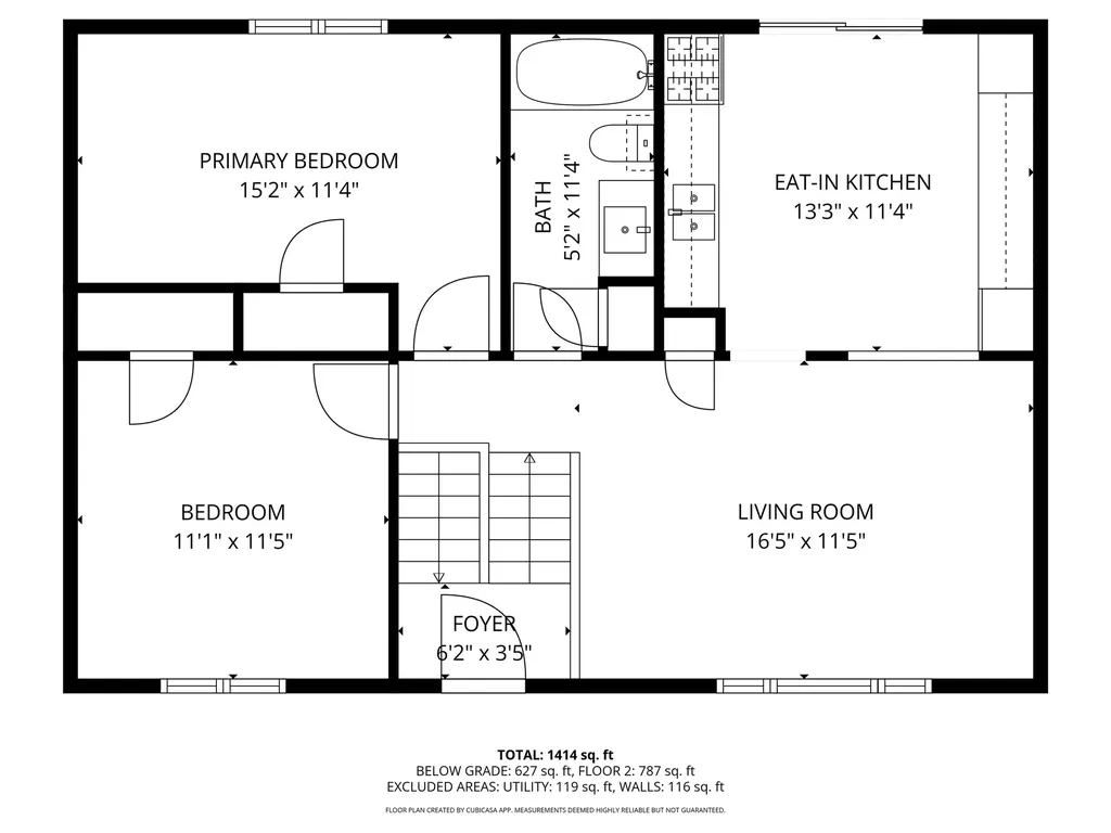
- Square Feet: 1,728
- Year Built: 1969
- Zoning: Res
- Stories: 1.5
- Roof: Asphalt Shingle
- Building Construction: Vinyl Siding
- Exterior Color: Blue
- Foundation: Block, Concrete
- Garage Spaces: 1
Location
- Town: Milton
- County: Chittenden
- State: VT
- Zip: 05468
Interior Features
Bedrooms
- Bedrooms: 2
Basement
- Basement: Finished, Full, Interior Stairs
Other
- Interior Features: Attic with Hatch/Skuttle, Blinds, Ceiling Fan, Draperies, Kitchen/Dining, Laundry Hook-ups, Natural Light, Programmable Thermostat, Basement Laundry
- Floors: Carpet, Vinyl
Exterior Features
Features
- Parking Description: Auto Open, Driveway, Garage, Parking Spaces 3 - 5, Paved, Attached
- Driveway: Paved
- Exterior Features: Deck, Full Fence, Garden Space, Shed, Window Screens
Utilities and Appliances
Utilities and Appliances
- Appliances Included: Gas Range, Refrigerator, Natural Gas Water Heater, Rented Water Heater
- Electric: Circuit Breaker(s)
- Heat System: Natural Gas, Hot Air
- Sewer: 1000 Gallon, Leach Field at Grade, Private
- Water: Public
Community
Schools
- Elementary School: Milton Elementary School
- Junior High: Milton Jr High School
- High School: Milton Senior High School
Amenities
- Accessibility Amenities: Mailbox Access w/No Steps, Bathroom w/Step-in Shower, Grab Bars in Bathroom, Kitchen w/5 Ft. Diameter, Low Pile Carpet, Paved Parking
Other Details
Finance
- Taxes: $4,892.78
- Tax Year: 2025

























































































