Property Details
Basic Information
- MLS Number: 5064411
- Status: ACT
- Lot Description: Corner, Level
- Acreage: 0.66
- Foreclosure: No
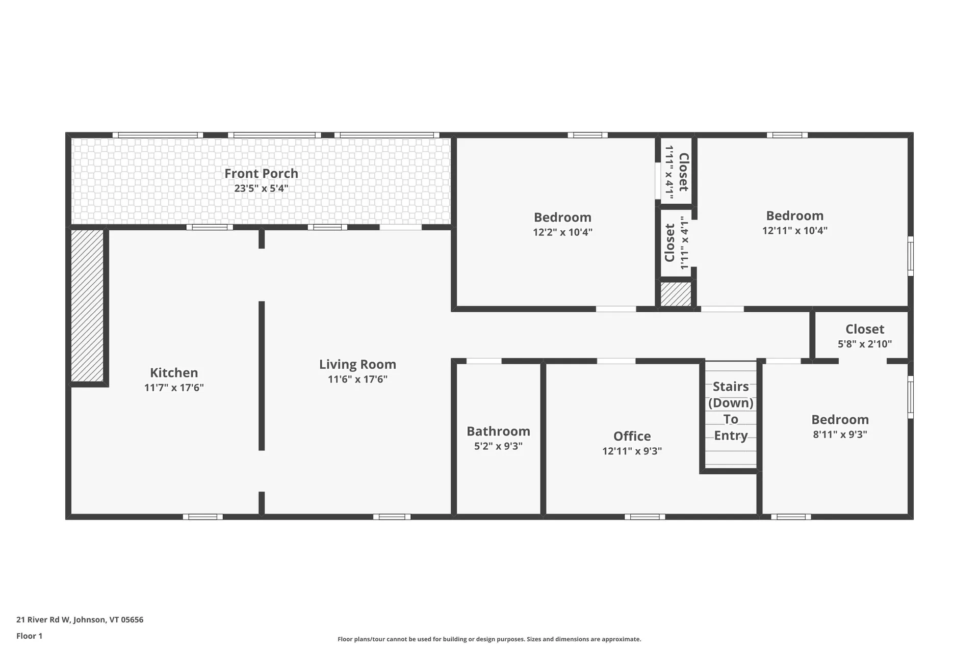
- Virtual Tour: Virtual Tour
Building
- Square Feet: 2,157
- Year Built: 1901
- Zoning: Village
- Roof: Metal
- Building Construction: Wood Exterior
- Foundation: Concrete, Stone
- Units: 2
- # of 3+ Bedrooms: 2
Location
- Town: Johnson
- County: Lamoille
- State: VT
- Zip: 05656
Interior Features
Basement
- Basement: Unfinished
Other
- Floors: Hardwood, Other
Exterior Features
Features
- Driveway: Dirt
- Road Frontage: 400
Utilities and Appliances
Utilities and Appliances
- Electric: Circuit Breaker(s)
- Heat System: Propane, Baseboard
- Sewer: Public
- Water: Public
Other Details
Finance
- Taxes: $4,271.82
- Tax Year: 2024



























































































