Property Details
Basic Information
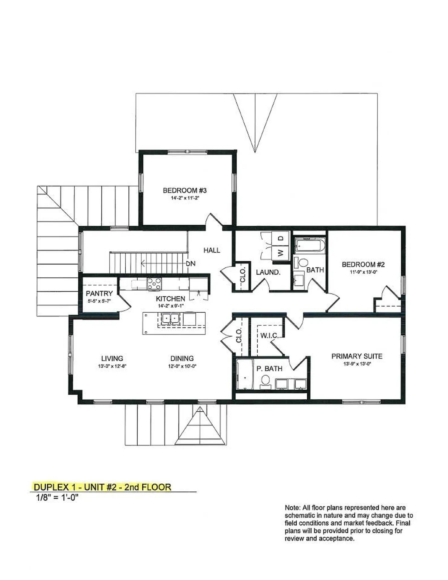
- Property Type: Condo
- MLS Number: 5060116
- Status: Active With Contract
- Lot Description: Landscaped, Trail/Near Trail, In Town, Near Paths, Neighborhood, Near Public Transportatn
- Foreclosure: No
- Virtual Tour: Virtual Tour
Building
- Square Feet: 1,434
- Year Built: 2025
- Zoning: Residential-20
- Stories: 1
- Roof: Metal, Architectural Shingle, Standing Seam
- Foundation: Poured Concrete
- Garage Spaces: 1
Location
- Town: Middlebury
- County: Addison
- State: VT
- Zip: 05753
Interior Features
Bedrooms
- Bedrooms: 2
Basement
- Basement: Concrete Floor, Insulated, Interior Stairs, Storage Space
Other
- Interior Features: Kitchen Island, Kitchen/Living, Living/Dining, Primary BR w/ BA, Natural Light, Walk-in Closet, Walk-in Pantry,1st Floor Laundry
- Floors: Carpet, Vinyl Plank
Exterior Features
Features
- Driveway: Paved
- Road Frontage: Yes
- Exterior Features: Covered Porch
Utilities and Appliances
Utilities and Appliances
- Electric: 200+ Amp Service, Circuit Breaker(s)
- Sewer: Public
- Water: Public
Community
Schools
- Elementary School: Mary Hogan School
- Junior High: Middlebury Union Middle #3
- High School: Middlebury Senior UHSD #3
Other Details
Finance
- HOA Fee: $325













