Property Details
Basic Information
- MLS Number: 5058010
- Status: Active With Contract
- Lot Description: Wooded
- Acreage: 0.6
- Foreclosure: No
- Virtual Tour: Virtual Tour
Building
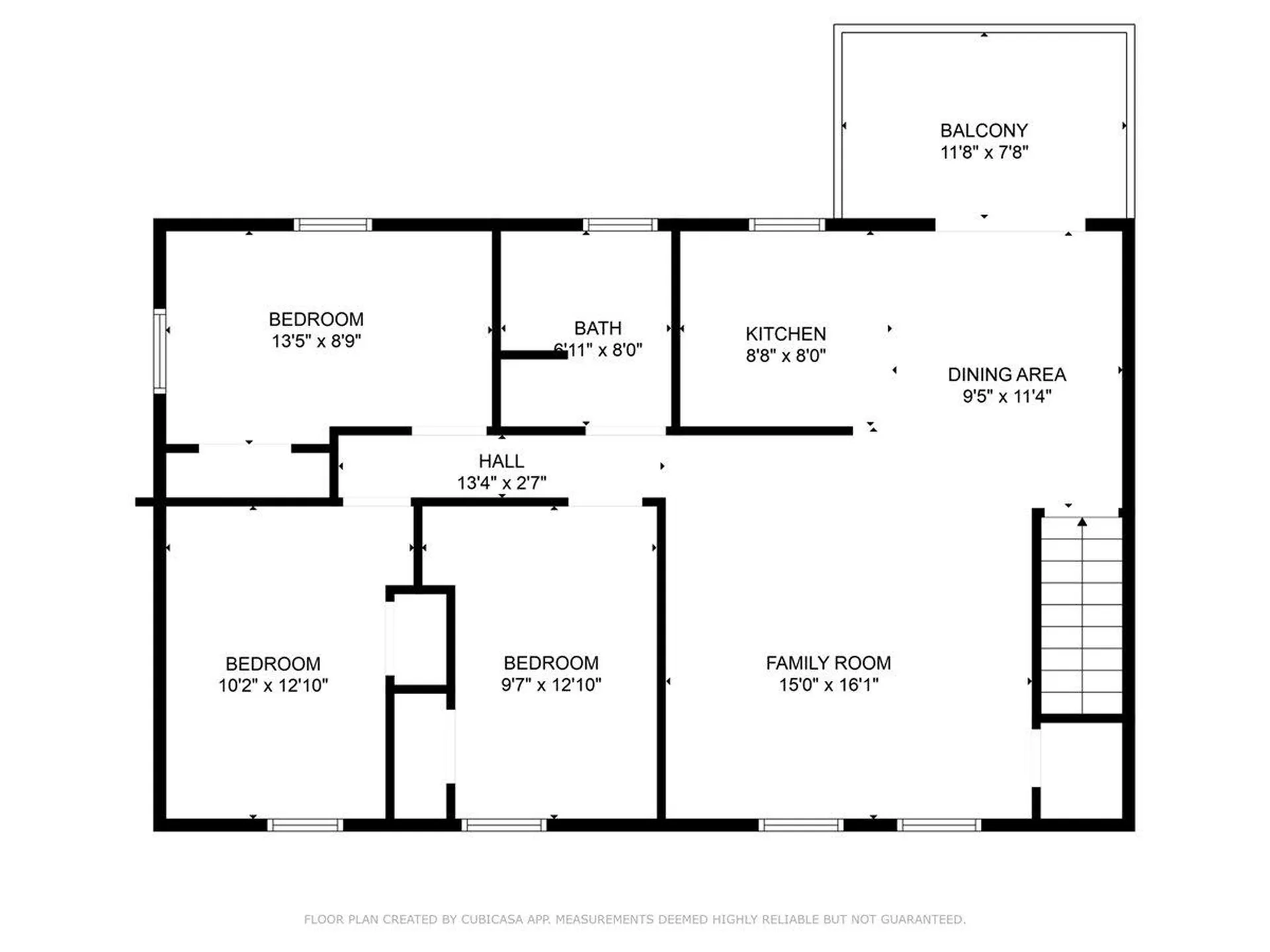
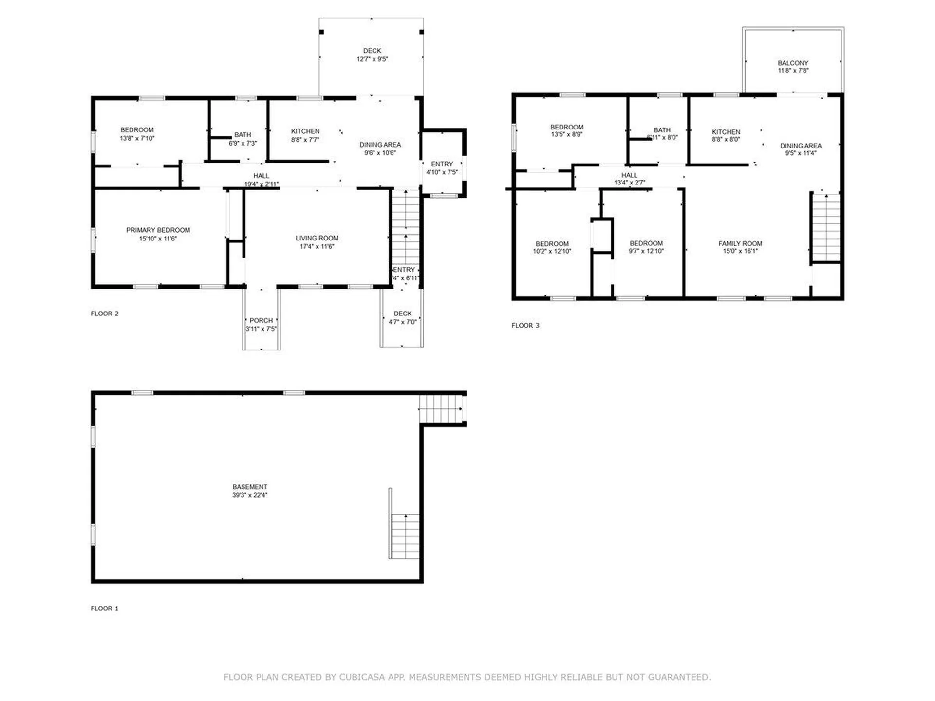
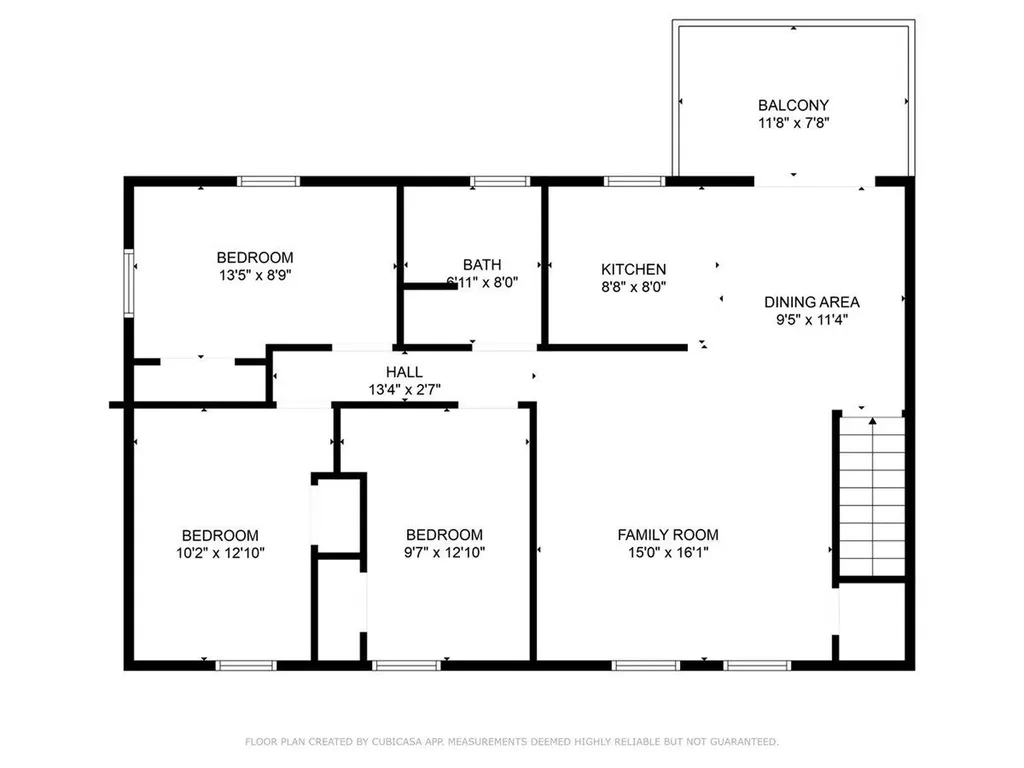
- Square Feet: 1,920
- Year Built: 1995
- Zoning: Residential
- Roof: Metal
- Building Construction: Wood Frame
- Foundation: Concrete
- Units: 2
- # of 2 Bedrooms: 1
- # of 3+ Bedrooms: 1
Location
- Town: Cambridge
- County: Lamoille
- State: VT
- Zip: 05464
Interior Features
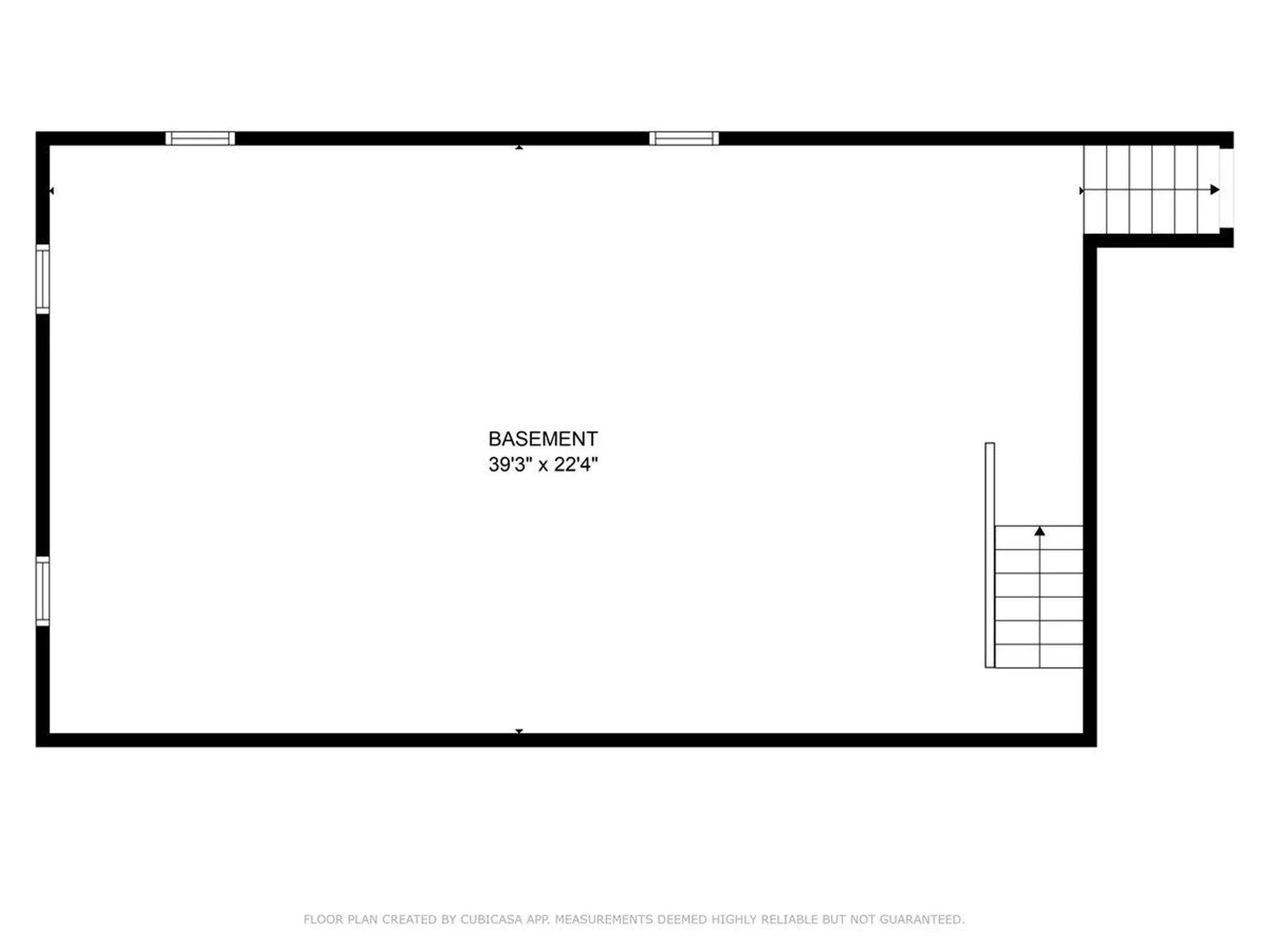
Basement
- Basement: Unfinished
Exterior Features
Features
- Driveway: Circular, Gravel
- Road Frontage: 133
Utilities and Appliances
Utilities and Appliances
- Electric: Circuit Breaker(s)
- Heat System: Propane, Baseboard, House Unit
- Sewer: Septic
- Water: Drilled Well
Community
Schools
- Elementary School: Cambridge Elementary
- Junior High: Choice
Other Details
Finance
- Taxes: $4,458.93
- Tax Year: 2025

































































































