Property Details
Basic Information
- MLS Number: 5048411
- Status: ACT
- Lot Description: City Lot, Neighbor Business, Rental Complex, Street Lights, Near Public Transportatn, Near Hospital
- Acreage: 0.11
- Foreclosure: No
Building
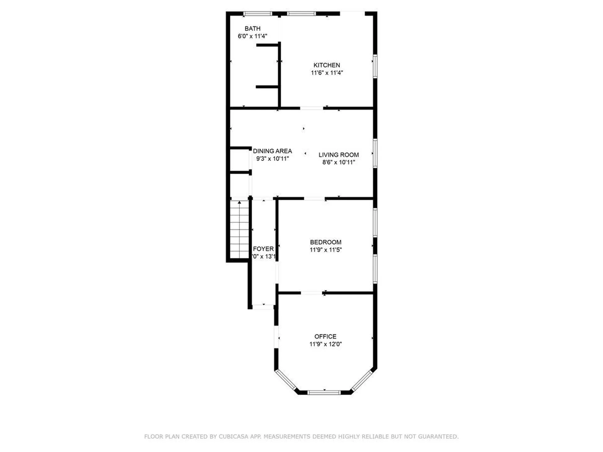
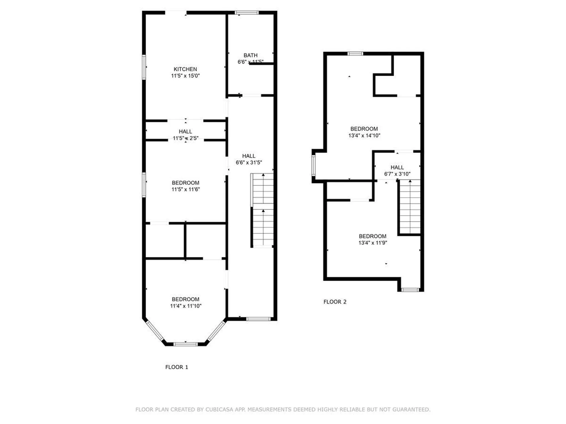
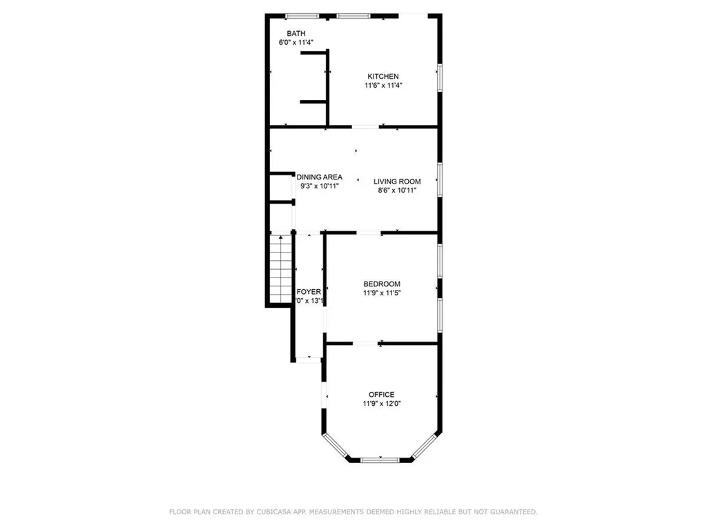
- Square Feet: 3,680
- Year Built: 1920
- Zoning: Mixed Use
- Roof: Asphalt Shingle
- Building Construction: Wood Frame
- Exterior Color: Grey
- Foundation: Brick, Concrete, Stone
- Units: 4
- Annual Income: $96,000
- Operating Expenses: 31446
- # of 1 Bedrooms: 2
- # of 3+ Bedrooms: 2
Location
- Town: Burlington
- County: Chittenden
- State: VT
- Zip: 05401
Interior Features
Basement
- Basement: Bulkhead, Concrete Floor, Interior Stairs, Storage Space, Unfinished, Interior Access, Exterior Access
Other
- Floors: Tile, Wood
Exterior Features
Features
- Driveway: Gravel
Utilities and Appliances
Utilities and Appliances
- Electric: Circuit Breaker(s)
- Heat System: Natural Gas, Baseboard, Electric, Forced Air, Mini Split
- Sewer: Public
- Water: Public
- Water Heater: Gas Water Heater
Community
Schools
- Elementary School: Edmunds Elementary School
- Junior High: Edmunds Middle School
- High School: Burlington High School
Other Details
Finance
- Annual Income: $96,000
- Taxes: $22,575
- Tax Year: 2025
Water
- Water Access: No





















































































